Water Infrastructure Replacement/Improvement Projects
Construction will begin April 20, 2026 for the North Pender watermain replacement project, with an estimated timeline of about 8 weeks from start to completion.
This important work will help improve the reliability of the water system and will include:
- Rock blasting
- Shrub removal
- Excavation
- Installation and testing of the new watermain
- Paving and permanent road restoration
This map shows areas where the work is taking place.
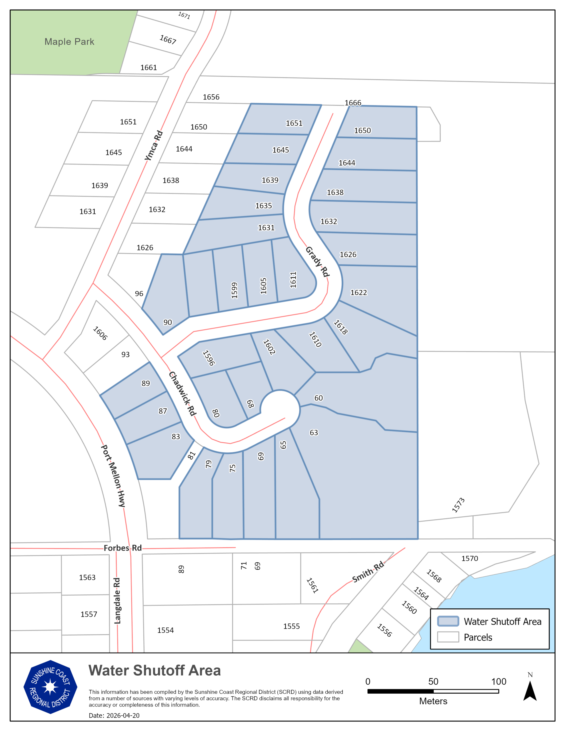
Water Service Shutoff Notice – Wednesday, April 22, 2026
Please be advised that water service will be temporarily shut off on Wednesday, April 22, 2026, from 9:30 a.m. to approximately 1:00 p.m. to allow work to be completed on the water main in the area.
Work Being Completed: We are replacing a hydrant and the hydrant valve at Grady and Chadwick.
Affected Area: Please refer to this map for properties impacted by this shutoff.
Important Reminder: Residents are encouraged to take precautions to protect hot water tanks and plumbing systems. This may include closing your private water shutoff valve or turning off power to your hot water tank during the interruption.
We appreciate your patience and cooperation while this essential maintenance is completed.
Parks Service Alerts
NOTE: The SCRD is aware that people are continuing to use the closed bridges listed below. These bridges are not safe. Please obey the signage on site.
Work will begin on trail remediations and bridge replacements in Cliff Gilker Park in mid-April. This will result in trail closures.
The trails outlined in the map below will be temporarily closed on the weekend of April 10.

The access trail to Wreck Beach off Rosemary Lane on Keats Island is currently closed for use until a hazardous section of overhanging uphill slope can be remediated. This work will take place from January 9 to 16. Once completed, the trail will be re-opened for public use. The public is kindly requested to reframe from using this trail during construction to ensure public safety.

The Vinebrook Bridge, located on the Suncoaster Trail remains closed due to risk of imminent failure.
Trail users can re-route along HWY 101 to trail access points north and south of the Vinebrook Bridge section of the trail.
The Kleindale Bridge, located on the Suncoaster Trail remains closed due to user safety and a deteriorating bridge structure. Trail users can re-route along Highway 101 to the Lions Park trails to re-connect to the Suncoaster Trail.
The bridge at Chaster House in Elphinstone was damaged during the atmospheric river event in late 2021. Like the bridges at Cliff Gilker Park, incremental damage was discovered due to heavy rains and creek volumes.
This bridge is scheduled for decommissioning in 2026 as part of the Chaster Park Access Improvements Project